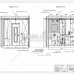
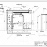
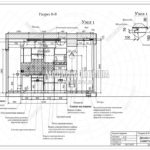
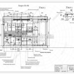
Дизайн проект и рабочая документация к проекту в жилом комплексе Замитино по адресу Россия, Московская область, городской округ Красногорск, деревня Сабурово, жилой комплекс ЗаМитино (На Северо-Западе от Москвы, Пятницкое шоссе)
Застройщиком является Kaskad Family. Кирпичный дом в 4 этажа.































































