Дизайн проект в ЖК Пироговская Ривьера

Гостиная - Дизайн проект в Пироговской Ривьере

Дизайн проект ЖК Пироговская Ривьера

Дизайн проект и рабочая документация к проекту в жилом комплексе Пироговская Ривьера по адресу Россия, Московская область, городской округ Мытищи, (На Севере от Москвы, Пироговское или Осташковское шоссе)

Застройщиком является КомфортИнвест и Rezidential group (Резиденшл групп). Каркасно-монолитный дом в 9 этажей.

Начало сотрудничества: январь 2018.

Дизайн проект передан:  в начале февраля 2018.

Отзыв

Заказчик остался доволен моей работой: «Дизайнер на 5+» ⭐⭐⭐⭐🌟

Фотографии во время и после ремонта

3D Экскурсия по интерьеру

⚠️ Видео 360 работает только в браузере на ПК или Android (Google Chrome). Для просмотра на iOS устройствах нужно установить официальное YouTube приложение.
Google Play: https://play.google.com/store/apps/details?id=com.google.android.youtube&hl=ru
App Store: https://itunes.apple.com/ru/app/youtube/id544007664
YouTube канал Малиевой Татьяны: https://www.youtube.com/channel/UCOTMFJYBMH26FgHFgrS5XDA

Кухня 360 – панорамное видео

Гостиная 360 – панорамное видео

Спальня 360 – панорамное видео

Детская 360 – панорамное видео

3D визуализация

 

3D Прихожей-холла

3D гостиной

3D кухни

3D детской комнаты

3D спальни

Коллажи квартиры

 

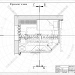
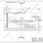
Планировки квартиры (несколько вариантов)

Конечный вариант планировки готовится к публикации на сайте. Для примера несколько планировок, которые были на согласовании.

Дизайн проект квартиры в ЖК Пироговская Ривьера в Мытищах

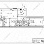
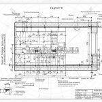
На картинке показаны чертежи входящие в дизайн проект. Помимо этих планов скоро размещу развертки (разрезы стен, вид сбоку, а не сверху – очень нужны документ для грамотных строителей).

 

Альбом дизайн-проекта квартиры

Развертки – вид помещений сбоку

Развертки ванной комнаты

Развертки санузла

Развертки  гостиной

Развертки кухни

Развертки детской комнаты

Развертки спальни-гардеробной

 

12345
Рейтинг: 100,00%
blank Загрузка...