Дизайн проект в ЖК Новое Медведково (Мытищи)

Дизайн ванной комнаты в ЖК Новое Медведково

Дизайн проект 3-х комнатной квартиры (перепланировка 2-х комнатной 70 кв. м.) в стиле современной классики и прованс. Жилой комплекс Новое Медведково (застройщик INGRAD). Квартира заказчика находится в новостройке в городе Мытищи (Подмосковье).

Начало сотрудничества: 19 марта 2018.

Дизайн проект передан на стройку:  26 июля 2018.

Отзыв о перепланировке

Заказчик доволен моей работой: «Перепланировка 2-комнатной квартиры» ⭐⭐⭐⭐🌟


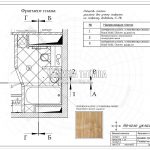
16. План отделки стен

Смотреть планировку

3D Экскурсия по квартире

⚠️ Видео 360 работает только в браузере на ПК или Android (Google Chrome). Для просмотра на iOS устройствах нужно установить официальное YouTube приложение.
Google Play: https://play.google.com/store/apps/details?id=com.google.android.youtube&hl=ru
App Store: https://itunes.apple.com/ru/app/youtube/id544007664
YouTube канал Малиевой Татьяны: https://www.youtube.com/channel/UCOTMFJYBMH26FgHFgrS5XDA

Кухня 360 — панорамное видео кухни объединенной с лоджией

Гостиная 360 — панорамное видео гостиной

Спальня 360 — панорамное видео спальни для родителей

Детская 360 — панорамное видео комнаты для школьника

Ванная 360 — панорамное видео ванной совмещенной с санузлом

Визуализация квартиры

На основе плана планировки квартиры и разверток я построила 3D модель квартиры и результат этой работы представлен ниже.

3D визуализация

Фотореалистичные изображения квартиры.

Зеркальный холл-прихожая

Кухня объединенная с лоджией на которой кабинет

 

Гостиная с библиотечным шкафом

Ванная объединенная с санузлом

Спальня в стиле прованс

Детская комната для мальчика в корабельной тематике

Альбом дизайн-проекта квартиры

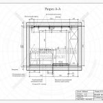
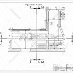
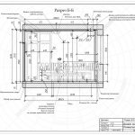
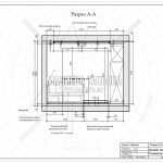
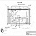
Развертки – вид сбоку

Разрезы помещений, если смотреть на них сбоку, как в жизни. Эти планы очень выручают строителей и мебельщиков.

Ванная комната

Кухня

 

Гостиная

Детская комната

Спальня

Холл-прихожая

 

12345
Рейтинг: 100,00%
blank Загрузка...