Дизайн проект двухкомнатной квартиры 85 кв. м. и рабочая документация к проекту в жилом комплексе Мичуринский по адресу Россия, Москва, Мичуринский проспект, 26 (метро Раменки)
Застройщиком является ПИК. Кирпично-монолитный дом в 22 этажа.
3D Экскурсия по интерьеру
⚠️ Инструкция для телефонов: обязательно установите YouTube приложение себе на телефон. Только так вы достигнете полного погружения и вновь откройте это видео через приложение YouTube.
Google Play: https://play.google.com/store/apps/details?id=com.google.android.youtube&hl=ru
App Store: https://itunes.apple.com/ru/app/youtube/id544007664
3D визуализация
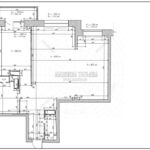
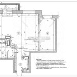
Рабочие планы






















